Description
Dans un programme neuf de standing , Le Colisée, découvrez ce superbe appartement T4 duplex de 105 m² avec ascenseur.
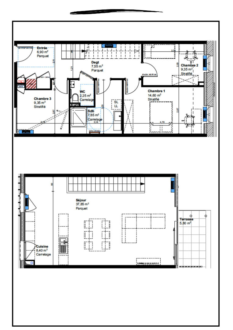
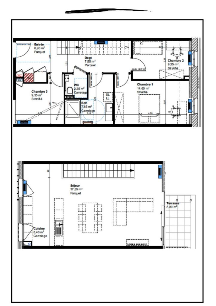
Au rez-de-chaussée, vous trouverez une entrée, un dégagement, un WC séparé, une salle de bains ainsi que trois chambres.
A l'étage, vous profiterez d'un salon séjour, d'une cuisine ouverte et d'une agréable terrasse de 5,80 m², orientée à l'Est, idéale pour vos moments de détente en extérieur.
Ce bien bénéficie de frais de notaire réduits et est disponible rapidement. De plus, il est éligible au Prêt à Taux Zéro sous certaines conditions.
Contactez nous sans plus attendre pour plus d'informations.
Caractéristiques du bien
Surface : 105 m²
Nombre d’étages : 3
Etage : 2
Pièces : 4
Chambres : 3
